中央線で新宿まで8分!人気のエリアです
| 建物 | シェアハウス | ||
|---|---|---|---|
| 希望性別 | 男女混合 | ||
| 入居期間 | 期間不問 | ||
| 設備 | 無線LAN(Wi-Fi)/冷蔵庫/掃除機/洗濯機/炊飯器/ガスコンロ/シャワー/湯船/食器棚/押し入れ/部屋の個室鍵/部屋照明/テレビ/エアコン/リビング/キッチン/部屋内家具/電子レンジ/布団貸し | ||
| 特典 | 即入居可/外国籍OK/住民票登録可/年齢制限無/禁煙/バイク駐輪可/自転車駐輪可/バス停間近/コンビニ間近/スーパー間近 | ||
|
| |||
| 詳細説明 |
|---|
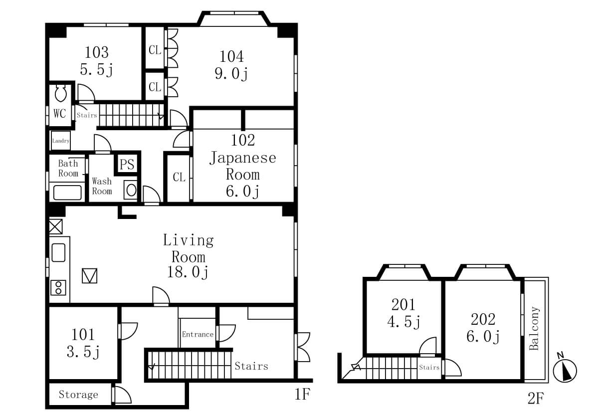
| モダン×安心感で暮らしやすさ抜群。 個室もバルコニーもある、暮らしやすさが抜群の荻窪ハウス 新宿まで中央線で8分、丸の内線で15分、人気の中央円沿い荻窪エリアのシェアハウスです。 荻窪駅周りの充実した商業施設も勿論、シェアハウスから200mm圏内にも大きいスーパーやドラッグストア、気軽に立ち寄れるカフェや大きな公園も数軒で生活のしやすさ抜群♪ リモートワーク中心の方はハウス中心の生活だけでも仕事ができたり、気晴らしに自宅から徒歩数分でお出かけできる場所も多数。 住人1人1人の完全個室完備!!鍵付きでプライベートな空間も大切にしています。雰囲気抜群で綺麗なたたみの和室やバルコニーや窓がついた日当たり良好洋室も。お好きなタイプをお選びくださいね。 ソファーでゆったり過ごせるリビング空間とシェアハウスでは珍しい大きなキッチンでハウスメイトとの交流も。 又、当ハウスはお風呂の利用時間の制限を設けていないため、お仕事の帰りが遅くてもゆったりお風呂タイムが楽しめるのも嬉しいポイント。 今までは落ち着いて自立した社会人の方が住んでおり、程よい距離感と整った生活環境が大変魅力的です。清掃もいつもバッチリです。 初めてのシェアハウスを検討されている方もお待ちしております。 【管理人の自己紹介】 こんにちは。荻窪でシェアハウスのオーナーをしておりますkinaと申します。 今現在はレーザーカッター/UVプリンターなどデジタルファブリケーション機械を扱う仕事をしており、自分自身もクリエイターとして様々な作品を作成したり、個人的にレッスンを行ったりしながら、シェアハウスも運営しています。 Illustrator、Photoshopなどのデザイン系ソフト使用や、DTMなども経験があるので、住みながら少し教えることもできます。 快適な暮らしと住んでよかったと言ってもらえる環境作りに努めてまいります。 【家賃/空室状況】 101:使用中 102:和室タイプ 6畳 53,000- 103:洋室タイプ 5.5畳 58,000- 104:使用中 201:洋室タイプ 4.5畳 52,000- 202:洋室タイプ 6畳 57,000- ・家賃に加え + 水道光熱費(1万円)を徴収いたします。備品などもこちらから毎月購入致します。 ・契約手数料や年度の契約更新料はかかりません! 【設備】 Wi-fi完備 エアコン各個室に完備 ※101のみなし 冷蔵庫 洗濯機 電子レンジ 収納 大型TV 駐輪場 その他 【初期費用】 保証金(家賃1ヶ月分) + 家賃 + 光熱費等預かり金 1.保証金(デポジット):家賃1か月分基本的には、退去時に全額返金します。 *入居から1年未満での退去の場合は、デポジットから30,000円を引いてお返しします。(他の部屋、他のCome on UPハウスへ移動される場合は不要です。 2.入居月の費用、家賃・水道光熱費預かり金は、日割り計算します。 |
| 交通 |
|
JR中央線快速「荻窪」 15分以内 または東京メトロ丸ノ内線(池袋-荻窪)「荻窪」 15分以内 または西武新宿線「井荻」 20分以内 |
| その他費用 |
| 水道・光熱費:10,000円 |
同じエリアのルームシェア情報
東京都
杉並区
3.2万円~3.6万円
下高井戸駅 / 徒歩3分以内
初期費用0円・3万円割引キャンペーン!
東京都
杉並区
3万円~3.8万円
高円寺駅 / 徒歩10分以内
初期費用0円・3万円割引キャンペーン!
東京都
杉並区
3.4万円~3.5万円
明大前駅 / 徒歩10分以内
初期費用0円・3万円割引キャンペーン!
東京都
杉並区
3.2万円~3.6万円
下高井戸駅 / 徒歩3分以内
初期費用0円・3万円割引キャンペーン!
東京都
杉並区
3.2万円~3.4万円
明大前駅 / 徒歩10分以内
初期費用0円・3万円割引キャンペーン!
東京都
杉並区
3.2万円~3.4万円
東高円寺駅 / 徒歩1分以内
初期費用0円・3万円割引キャンペーン!